Opis produktu
Charakterystyka
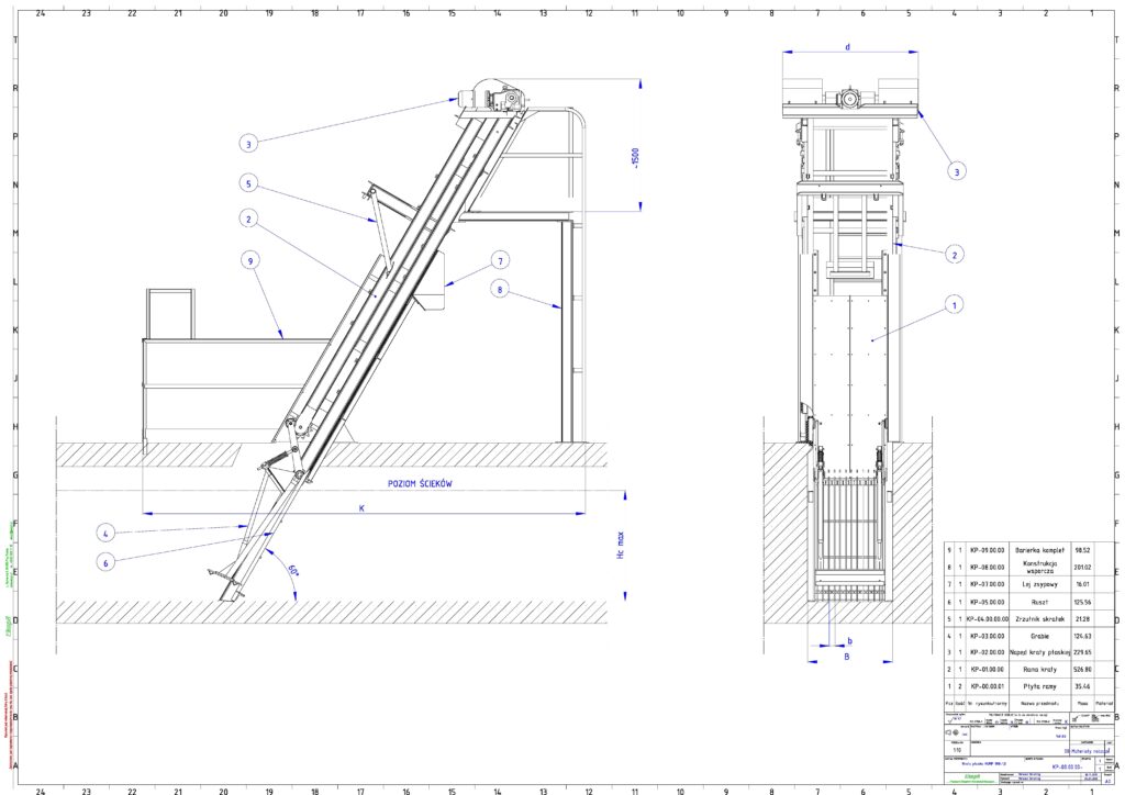
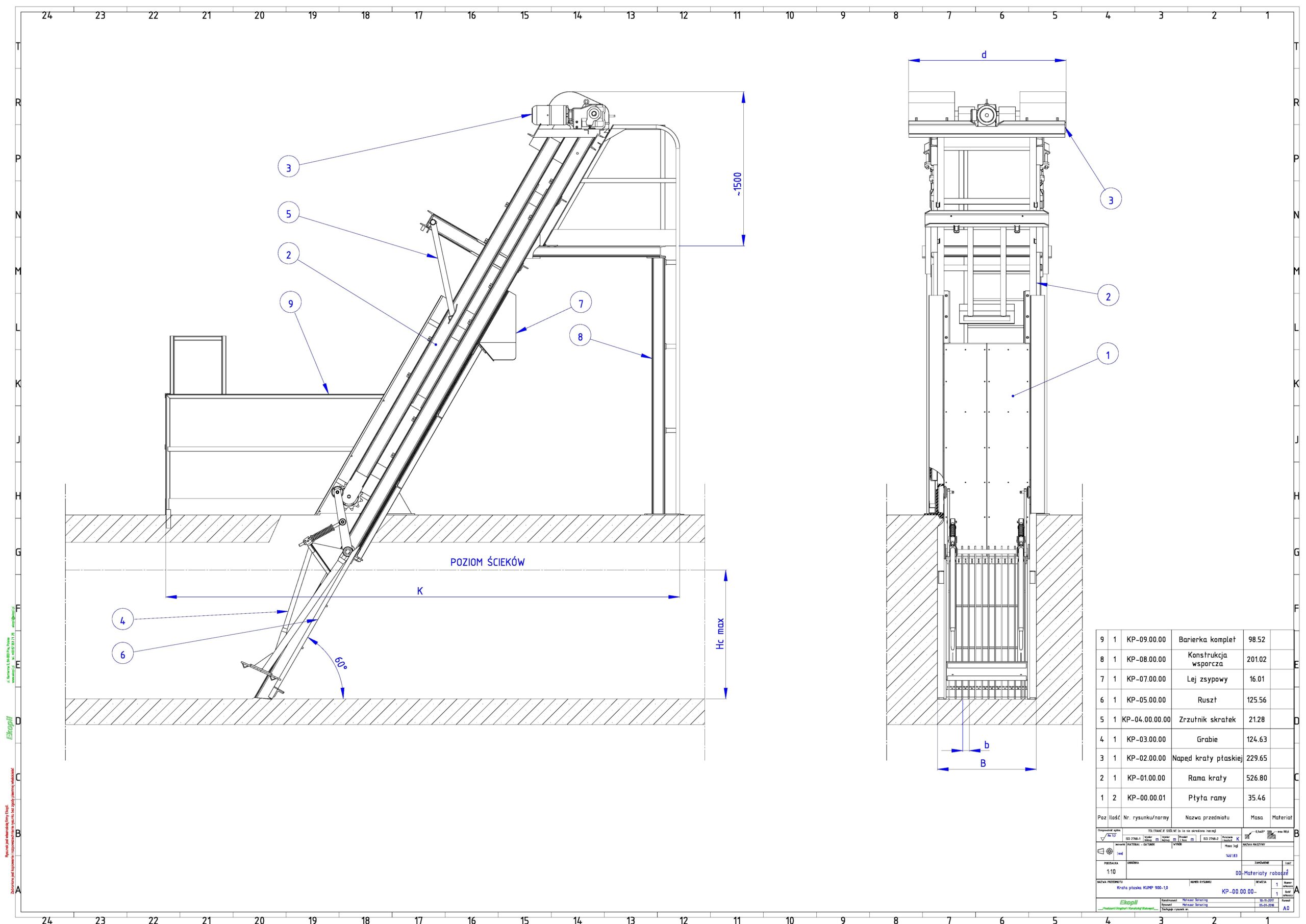
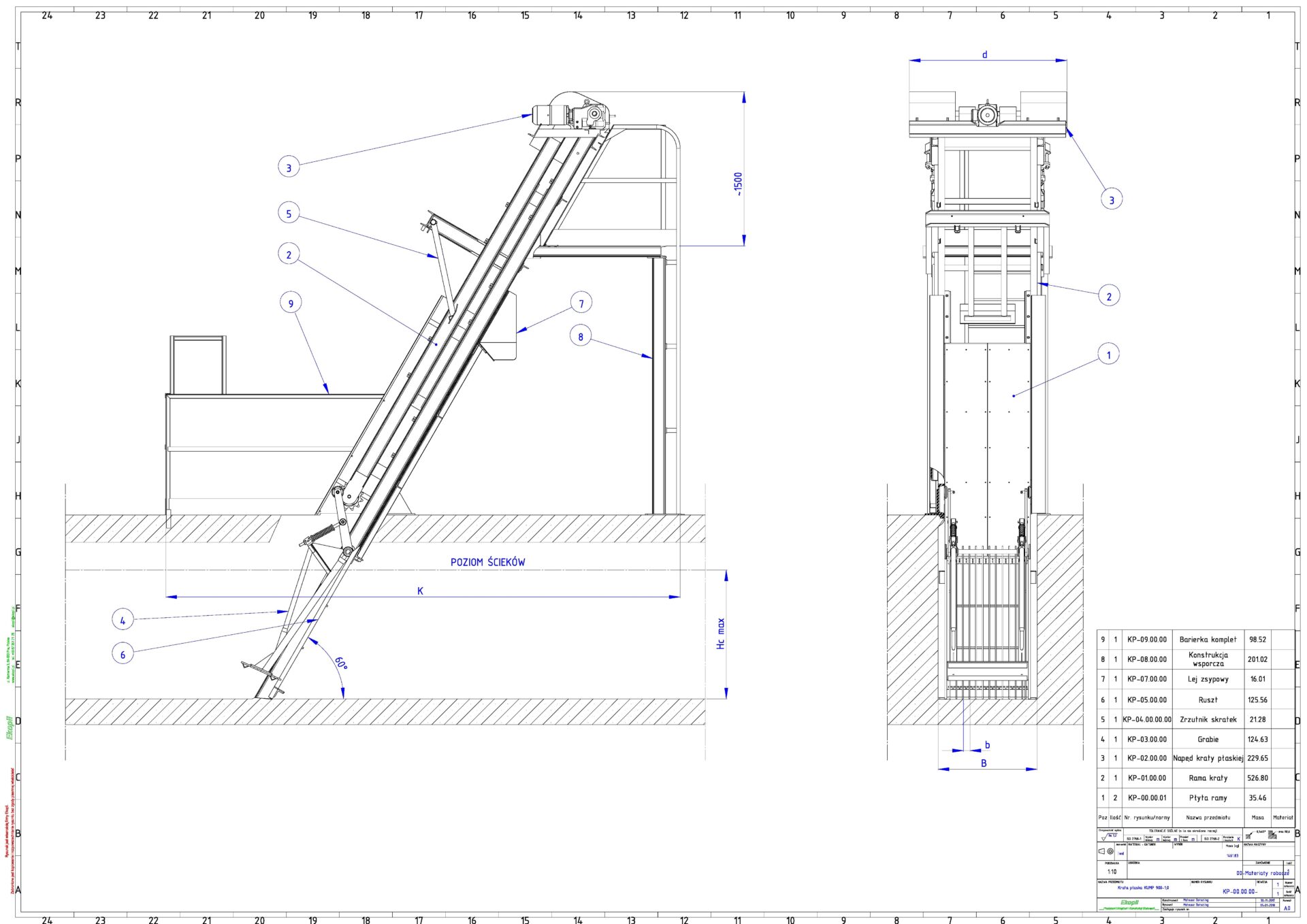
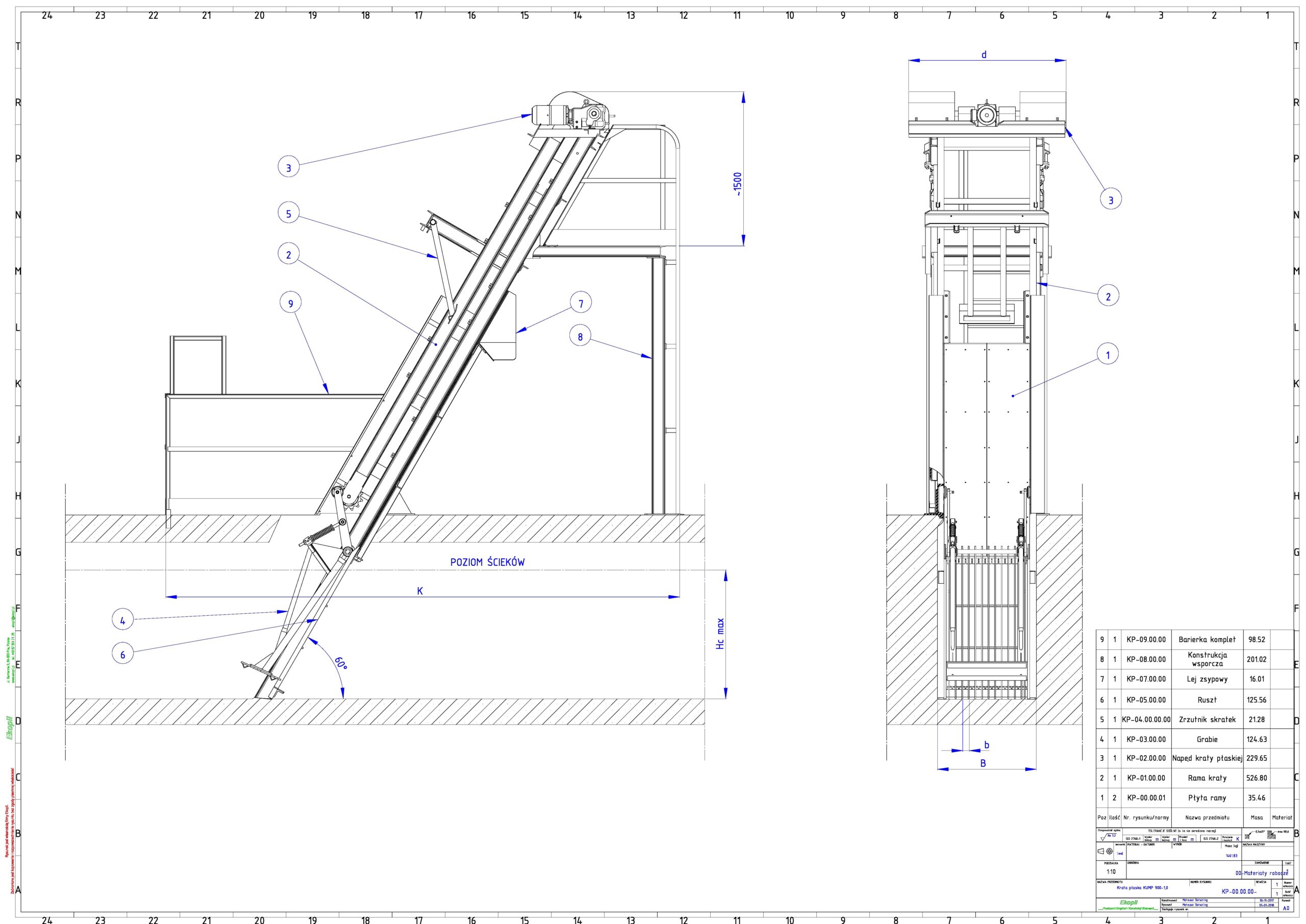
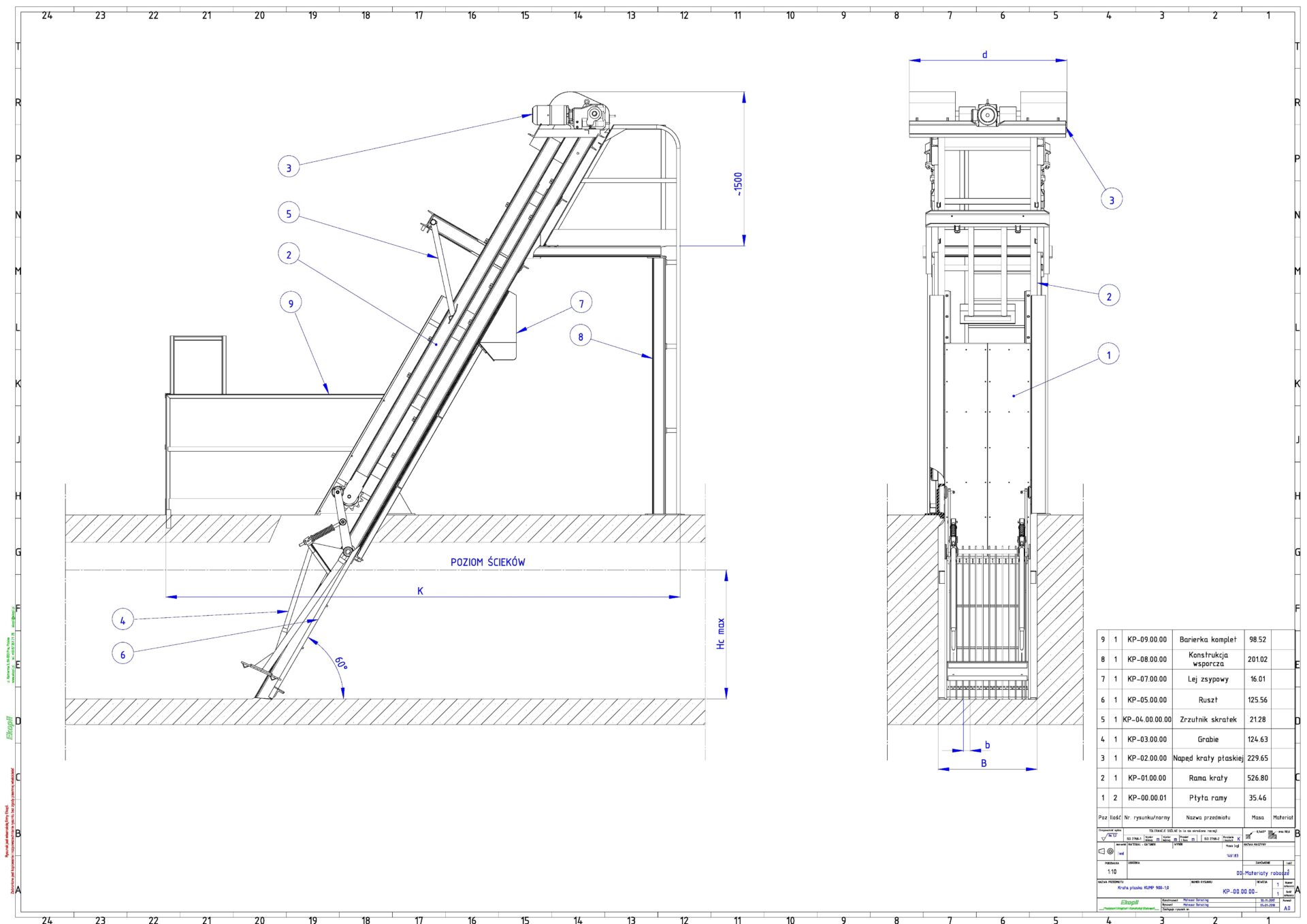
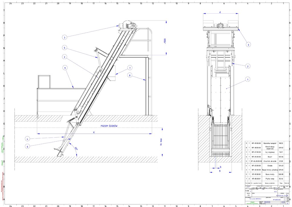
Budowa

Krata Płaska typu KUMP składa się z następujących głównych zespołów:
– rama
– zrzutnik skratek
– napęd
– lej zsypowy
– grabie
– ruszt
– konstrukcja wsporcza
– instalacja elektryczna

Kraty Płaskie typu KUMP produkowane są w 7 wielkościach określonych szerokością kanału B=900, 1200, 1500, 1800 mm oraz głębokością maksymalną kanału Hz=1900 i 2200 mm. Każda wielkość kraty może być wyposażona w ruszt o prześwicie 15 i 20 mm. Zainstalowana krata może być podparta na pomoście żelbetowym (wariant 1) lub na stalowej konstrukcji wsporczej (wariant 2).

Oznaczenie

KUMP 900 -1.9 – 20 – 1

gdzie:
K – krata
U – uniwersalna
M – mechaniczna
P – płaska
900 – szerokość kanału
1.9 – max głębokość kanału
20 – prześwit rusztu
1 – wariant podparcia kraty

UWAGA – istnieje możliwość wykonania kraty o innych wartościach niż w typoszeregu na specjalne zamówienie!

Dane do zamówienia

W zamówieniu należy podać:
-symbol wyrobu
-zamawianą ilość sztuk
-postulowany termin dostawy
-wykonawstwo materiałowe
Przy zapotrzebowaniu zamawiającego na kratę typu KUMP o innych wielkościach niż typowe, konieczne jest przesłanie dyspozycji budowlanej i uzgodnienie wykonawstwa z producentem.

Krata schodkowa, mechaniczna płaska typu KUMP

Krata schodkowa, rzadka typu KUMP znajdują zastosowanie:
– jako pierwszy stopień mechanicznego wyłapywania, usuwania i oczyszczania ze stałych
zanieczyszczeń ścieków w kanałach, przepompowniach oraz budynkach krat oczyszczalni ścieków
komunalnych i przemysłowych
– do mechanizacji i automatyzacji obsługi usuwania skratek w oczyszczalniach ścieków

This site is registered on wpml.org as a development site. Switch to a production site key to remove this banner.